 
        
Основой конструкции отдельно стоящего молниеотвода МЖ – 24,3 является цилиндрическая стойка СЦП 195-310. Производится эта стойка из высококачественных материалов – тяжелого бетона и стальной арматуры. Технология производства несущего элемента молниеотвода МЖ-24.3 (стойки) – довольно сложный технологический процесс. Обозначим основные моменты производства, за счет чего нам удалось добиться стабильно высокого качества продукции:
- Выбор материалов. Мы всегда подбираем бетон и сталь, оптимально подходящие для эксплуатации в указанном климатическом районе.
- Многоуровневая система контроля. Благодаря внедренной на предприятии системе контроля – качество нашей продукции всегда отвечает всем стандартам!
- Производство, хранение и транспортировка изделий осуществляется строго по ГОСТ. Мы никогда не отступаем от этого принципа, поэтому Вы можете быть уверены в том, что получите качественные изделия, точно в оговоренные сроки.
Первоначально (на стадии проектирования и утверждения серии 3.407.9-172) планировалось, что молниеотводы будут устанавливаться на электрических подстанциях. Но, после того как эти конструкции прошли проверку и сертификацию в ФСК ЕЭС, они устанавливаются на таких объектах как: крупные строительные площадки, транспортные узлы (к ним относятся крупные железнодорожные развязки, терминалы аэропортов, перевалочные пункты), спортивные объекты, промышленные базы и прочее.
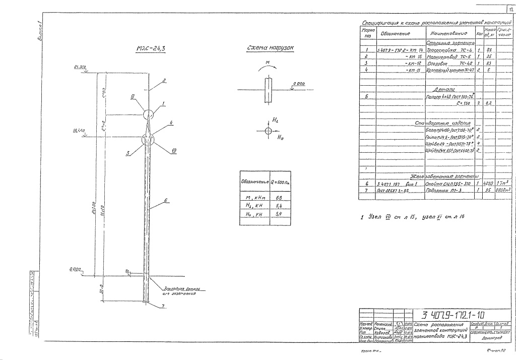
Молниеотводы устанавливаются на этих объектах с целью защиты от ударов молнией. Конструктивно, молниеотвод МЖ 24,3 состоит из таких частей:
- Молниеприемник. Этот элемент принимает на себя удар молнии и передает электроэнергию токоотводу. В зависимости от формы защищаемого объекта, а также количества используемых для этого молниеотводов, молниеприемник может быть выполнен как в виде отдельного металлического штыря (устремленного в высь), так и в виде металлической сети или стального троса.
- Токоотвод. Этому элементу молниеотвода МЖ-24,3 отведена роль проводника электроэнергии, поступающей от молниеприемника. Выполнен он в виде кабеля.
- Заземлитель. Данный элемент представляет собой хороший проводник, погруженный в грунт. Чаще всего его имеет форму металлической плиты.
