143987, Россия, Московская область, город Балашиха, мкр. Железнодорожный, ул. Советская, д. 46, офис 201
Войти
Слоган
8-800-100-53-12
8-800-100-53-12
143987, Россия, Московская область, город Балашиха, мкр. Железнодорожный, ул. Советская, д. 46, офис 201
Заказать звонок

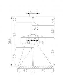
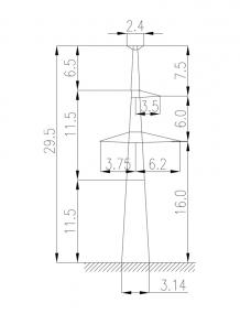
Промежуточные опоры ЛЭП-220 кВ

35кВ 110кВ 220кВ 330кВ 500кВ
Анкерно-угловые опоры У35 Анкерно-угловые опоры У110 Анкерно-угловые опоры У220 Анкерно-угловые опоры У330 Анкерно-угловые опоры УО500, УОК500, УСТ500
Промежуточные опоры П35 Промежуточные опоры П110, ПС110 Промежуточные опоры П220 Промежуточные опоры П330, ПБ330, ПС330 Промежуточные опоры ПП500, ПС500

Промежуточные опоры ЛЭП-220 кВ

Промежуточные опоры для высоковольтных линий 220 кВ изготавливаются по типовым проектам и устанавливаются вдоль трассы для поддержки проводов. Имеют различия по типам изоляторов:

  • подвесные, с креплением проводов при помощи подвесных гирлянд;
  • штыревые, с креплением проводов проволочной вязкой.
  • Также существуют варианты по нагрузке током: одноцепные и двухцепные. Конструкция возможна с оттяжками и без оттяжек.

    Шифр опоры Масса без цинкового покрытия, кг Масса с цинковым покрытием, кг
    П220-1 3669 3812
    П220-1Т 3771 3917
    П220-2 6208 6450
    П220-2+5 7645 7940
    П220-2Т 6327 6573
    П220-2Т+5 7764 8065
    П220-3 4698 4881
    П220-3+5 5860 6088
    П220-3Т 4876 5066
    П220-3Т+5 6039 6274
    П220-5 3429 3540
    П220-5+4,5 3731 3852
    П220-5-10,5 2783 2875
    ПС220-2 5503 5717
    ПС220-2Т 5624 5843
    ПС220-3 4056 4214
    ПС220-5 5575 5793
    ПС220-5Т 5741 5965
    ПС220-6 8467 8798
    ПС220-6Т 8546 8880
    ПС220-7 4247 4413
    ПС220-7Т 4497 4672
    1П220-1 3429 3538
    1П220-1+4.5 3734 3854
    1П220-1-10.5 2801 2891
    1П220-1-6.0 2955 3194
    1П220-1Т 3576 3693
    1П220-1Т+4.5 3884 4009
    1П220-1Т-10.5 2949 3044
    1П220-1Т-6.0 3242 3348
    1П220-2 5423 5635
    1П220-2-11.5 3867 4018
    1П220-2-4.9 4706 4890
    1П220-2Т 5570 5787
    1П220-2Т-11.5 4013 4170
    1П220-2Т-4.9 4854 5043
    2П220-1 4396 4560
    2П220-1-11.5 2959 3069
    2П220-1-6.8 3561 3694
    2П220-1Т 4595 4767
    2П220-1Т-11.5 3162 3279
    2П220-1Т-6.8 3761 3901
    2П220-2 6728 6976
    2П220-2-11.5 4689 4861
    2П220-2-5.0 5757 5969
    2П220-2Т 6876 7130
    2П220-2Т-11.5 4836 5012
    2П220-2Т-5.0 5905 6122
    2П220-3 3909 4055
    2П220-3-11.5 2618 2715
    2П220-3-5.8 3199 3318
    2П220-3Т 4107 4251
    2П220-3Т-11.5 2820 2924
    2П220-3Т-5.8 3397 3523
    2П220-7 3877 4001
    2П220-7+4.5 4252 4388
    2П220-7-10.5 3117 3217
    2П220-7-6.0 3486 3597
    2П220-7Т 4025 4155
    2П220-7Т+4.5 4400 4541
    2П220-7Т-10.5 3265 3370
    2П220-7Т-6.0 3633 3750
    3П220-2 7120 7384
    3П220-2-11.5 5047 5233
    3П220-2-5.0 6141 6368
    3П220-2Т 7231 7500
    3П220-2Т-11.5 5158 5350
    3П220-2Т-5.0 6250 6481
    Щелкните на опору, для перехода по странице

    Шифр опоры П220-1
    Тип опоры Промежуточные
    Цепность Одноцепные
    Марка проводов АС 300/39-АС 400/51
    Марка троса С 70
    № чертежа монтажной схемы 3080тм-т6
    Масса опоры по черт. КМ без цинка в кг 3132
    Масса опоры по черт. КМ с цинком в кг 3252
    Шифр опоры П220-1Т
    Тип опоры Промежуточные
    Цепность Одноцепные
    Марка проводов АС 300/39-АС 400/51
    Марка троса С 70
    № чертежа монтажной схемы 3080тм-т6
    Масса опоры по черт. КМ без цинка в кг 3234
    Масса опоры по черт. КМ с цинком в кг 3359
    Шифр опоры П220-2
    Тип опоры Промежуточные
    Цепность Двухцепные
    Марка проводов АС 300/39-АС 400/51
    Марка троса ТК 11
    № чертежа монтажной схемы 3080тм-т6
    Масса опоры по черт. КМ без цинка в кг 6208
    Масса опоры по черт. КМ с цинком в кг 6450
    Шифр опоры П220-2+5
    Тип опоры Промежуточные
    Цепность Двухцепные
    Марка проводов АС 300/39-АС 400/51
    Марка троса ТК 11
    № чертежа монтажной схемы 3080тм-т6
    Масса опоры по черт. КМ без цинка в кг 7645
    Масса опоры по черт. КМ с цинком в кг 7940
    Шифр опоры П220-2Т
    Тип опоры Промежуточные
    Цепность Двухцепные
    Марка проводов АС 300/39-АС 400/51
    Марка троса ТК 11
    № чертежа монтажной схемы 3080тм-т6
    Масса опоры по черт. КМ без цинка в кг 6327
    Масса опоры по черт. КМ с цинком в кг 6573
    Шифр опоры П220-2Т+5
    Тип опоры Промежуточные
    Цепность Двухцепные
    Марка проводов АС 300/39-АС 400/51
    Марка троса ТК 11
    № чертежа монтажной схемы 3080тм-т6
    Масса опоры по черт. КМ без цинка в кг 7764
    Масса опоры по черт. КМ с цинком в кг 8065
    Шифр опоры П220-3
    Тип опоры Промежуточные
    Цепность Двухцепные
    Марка проводов АС 300/39-АС 400/51
    Марка троса С 70
    № чертежа монтажной схемы 3080тм-т6
    Масса опоры по черт. КМ без цинка в кг 4698
    Масса опоры по черт. КМ с цинком в кг 4881
    Шифр опоры П220-3+5
    Тип опоры Промежуточные
    Цепность Одноцепные
    Марка проводов АС 300/39-АС 400/51
    Марка троса С 70
    № чертежа монтажной схемы 3080тм-т6
    Масса опоры по черт. КМ без цинка в кг 5860
    Масса опоры по черт. КМ с цинком в кг 6088
    Шифр опоры П220-3Т
    Тип опоры Промежуточные
    Цепность Одноцепные
    Марка проводов АС 300/39-АС 400/51
    Марка троса С 70
    № чертежа монтажной схемы 3080тм-т6
    Масса опоры по черт. КМ без цинка в кг 4876
    Масса опоры по черт. КМ с цинком в кг 5066
    Шифр опоры П220-3Т+5
    Тип опоры Промежуточные
    Цепность Одноцепные
    Марка проводов АС 300/39-АС 400/51
    Марка троса С 70
    № чертежа монтажной схемы 3080тм-т6
    Масса опоры по черт. КМ без цинка в кг 6039
    Масса опоры по черт. КМ с цинком в кг 6274
    Шифр опоры П220-5
    Тип опоры Промежуточные
    Цепность Одноцепные
    Марка проводов АС 300/39-АС 400/51
    Марка троса С 70
    № чертежа монтажной схемы 9226тм-т2
    Масса опоры по черт. КМ без цинка в кг 3429
    Масса опоры по черт. КМ с цинком в кг 6088
    Шифр опоры П220-5+4,5
    Тип опоры Промежуточные
    Цепность Одноцепные
    Марка проводов АС 300/39-АС 400/51
    Марка троса С 70
    № чертежа монтажной схемы 9226тм-т2
    Масса опоры по черт. КМ без цинка в кг 3731
    Масса опоры по черт. КМ с цинком в кг 3852
    Шифр опоры П220-5-10,5
    Тип опоры Промежуточные
    Цепность Одноцепные
    Марка проводов АС 300/39-АС 400/51
    Марка троса С 70
    № чертежа монтажной схемы 9226тм-т2
    Масса опоры по черт. КМ без цинка в кг 2783
    Масса опоры по черт. КМ с цинком в кг 2875
    Шифр опоры ПС220-2
    Тип опоры Промежуточные
    Цепность Двухцепные
    Марка проводов АС 300/39-АС 400/51
    Марка троса TK 11
    № чертежа монтажной схемы 3080тм-т6
    Масса опоры по черт. КМ без цинка в кг 5503
    Масса опоры по черт. КМ с цинком в кг 5717
    Шифр опоры ПС220-2Т
    Тип опоры Промежуточные
    Цепность Двухцепные
    Марка проводов АС 300/39-АС 400/51
    Марка троса TK 11
    № чертежа монтажной схемы 3080тм-т6
    Масса опоры по черт. КМ без цинка в кг 5624
    Масса опоры по черт. КМ с цинком в кг 5843
    Шифр опоры ПС220-3
    Тип опоры Промежуточные
    Цепность Одноцепные
    Марка проводов АС 300/39-АС 400/51
    Марка троса TK 11
    № чертежа монтажной схемы 3080тм-т6
    Масса опоры по черт. КМ без цинка в кг 4056
    Масса опоры по черт. КМ с цинком в кг 4214
    Шифр опоры ПС220-5
    Тип опоры Промежуточные
    Цепность Одноцепные
    Марка проводов АС 300/39-АС 400/51
    Марка троса TK 11
    № чертежа монтажной схемы 3081тм-т7
    Масса опоры по черт. КМ без цинка в кг 5575
    Масса опоры по черт. КМ с цинком в кг 5793
    Шифр опоры ПС220-5Т
    Тип опоры Промежуточные
    Цепность Одноцепные
    Марка проводов АС 300/39-АС 400/51
    Марка троса TK 11
    № чертежа монтажной схемы 3081тм-т7
    Масса опоры по черт. КМ без цинка в кг 5741
    Масса опоры по черт. КМ с цинком в кг 5965
    Шифр опоры ПС220-6
    Тип опоры Промежуточные
    Цепность Двухцепные
    Марка проводов АС-300, АС-400
    Марка троса TK 11
    № чертежа монтажной схемы 3081тм-т7
    Масса опоры по черт. КМ без цинка в кг 8467
    Масса опоры по черт. КМ с цинком в кг 8798
    Шифр опоры ПС220-6Т
    Тип опоры Промежуточные
    Цепность Двухцепные
    Марка проводов АС-300, АС-400
    Марка троса TK 11
    № чертежа монтажной схемы 3081тм-т7
    Масса опоры по черт. КМ без цинка в кг 8546
    Масса опоры по черт. КМ с цинком в кг 8880
    Шифр опоры ПС220-7
    Тип опоры Промежуточные
    Цепность Двухцепные
    Марка проводов АС-300, АС-400
    Марка троса TK 11
    № чертежа монтажной схемы 3081тм-т7
    Масса опоры по черт. КМ без цинка в кг 8467
    Масса опоры по черт. КМ с цинком в кг 8798
    Шифр опоры ПС220-7Т
    Тип опоры Промежуточные
    Цепность Двухцепные
    Марка проводов АС-300, АС-400
    Марка троса TK 11
    № чертежа монтажной схемы 3081тм-т7
    Масса опоры по черт. КМ без цинка в кг 8546
    Масса опоры по черт. КМ с цинком в кг 8880
    Шифр опоры 1П220-1
    Тип опоры Промежуточные
    Цепность Одноцепные
    Марка проводов АС240/32,АС400/51
    Марка троса С70 (ТК-11)
    № чертежа монтажной схемы 3.407.2-165.1 09КМ, СЗО ЭСП
    Масса опоры по черт. КМ без цинка в кг 3429
    Масса опоры по черт. КМ с цинком в кг 3538
    Шифр опоры 1П220-1+4.5
    Тип опоры Промежуточные
    Цепность Одноцепные
    Марка проводов АС240/32,АС400/51
    Марка троса С70 (ТК-11)
    № чертежа монтажной схемы 3.407.2-165.1 09КМ, СЗО ЭСП
    Масса опоры по черт. КМ без цинка в кг 3734
    Масса опоры по черт. КМ с цинком в кг 3854
    Шифр опоры 1П220-1-10.5
    Тип опоры Промежуточные
    Цепность Одноцепные
    Марка проводов АС240/32,АС400/51
    Марка троса С70 (ТК-11)
    № чертежа монтажной схемы 3.407.2-165.1 09КМ, СЗО ЭСП
    Масса опоры по черт. КМ без цинка в кг 2801
    Масса опоры по черт. КМ с цинком в кг 2891
    Шифр опоры 1П220-1-6.0
    Тип опоры Промежуточные
    Цепность Одноцепные
    Марка проводов АС240/32,АС400/51
    Марка троса С70 (ТК-11)
    № чертежа монтажной схемы 3.407.2-165.1 09КМ, СЗО ЭСП
    Масса опоры по черт. КМ без цинка в кг 2955
    Масса опоры по черт. КМ с цинком в кг 3194
    Шифр опоры 1П220-1Т
    Тип опоры Промежуточные
    Цепность Одноцепные
    Марка проводов АС240/32,АС400/51
    Марка троса С70 (ТК-11)
    № чертежа монтажной схемы 3.407.2-165.1 09КМ, СЗО ЭСП
    Масса опоры по черт. КМ без цинка в кг 3576
    Масса опоры по черт. КМ с цинком в кг 3693
    Шифр опоры 1П220-1Т+4.5
    Тип опоры Промежуточные
    Цепность Одноцепные
    Марка проводов АС240/32,АС400/51
    Марка троса С70 (ТК-11)
    № чертежа монтажной схемы 3.407.2-165.1 09КМ, СЗО ЭСП
    Масса опоры по черт. КМ без цинка в кг 3884
    Масса опоры по черт. КМ с цинком в кг 4009
    Шифр опоры 1П220-1Т-10.5
    Тип опоры Промежуточные
    Цепность Одноцепные
    Марка проводов АС240/32,АС400/51
    Марка троса С70 (ТК-11)
    № чертежа монтажной схемы 3.407.2-165.1 09КМ, СЗО ЭСП
    Масса опоры по черт. КМ без цинка в кг 2949
    Масса опоры по черт. КМ с цинком в кг 3044
    Шифр опоры 1П220-1Т-6.0
    Тип опоры Промежуточные
    Цепность Одноцепные
    Марка проводов АС240/32,АС400/51
    Марка троса С70 (ТК-11)
    № чертежа монтажной схемы 3.407.2-165.1 09КМ, СЗО ЭСП
    Масса опоры по черт. КМ без цинка в кг 3242
    Масса опоры по черт. КМ с цинком в кг 3348
    Шифр опоры 1П220-2
    Тип опоры Промежуточные
    Цепность Двухцепные
    Марка проводов АС240/32
    Марка троса С70 (ТК-11)
    № чертежа монтажной схемы 3.407.2-145.1 09КМ, СЗО ЭСП
    Масса опоры по черт. КМ без цинка в кг 5423
    Масса опоры по черт. КМ с цинком в кг 5635
    Шифр опоры 1П220-2-11.5
    Тип опоры Промежуточные
    Цепность Двухцепные
    Марка проводов АС240/32
    Марка троса С70 (ТК-11)
    № чертежа монтажной схемы 3.407.2-145.1 09КМ, СЗО ЭСП
    Масса опоры по черт. КМ без цинка в кг 3867
    Масса опоры по черт. КМ с цинком в кг 4018
    Шифр опоры 1П220-2-4.9
    Тип опоры Промежуточные
    Цепность Двухцепные
    Марка проводов АС240/32
    Марка троса С70 (ТК-11)
    № чертежа монтажной схемы 3.407.2-145.1 09КМ, СЗО ЭСП
    Масса опоры по черт. КМ без цинка в кг 4706
    Масса опоры по черт. КМ с цинком в кг 4890
    Шифр опоры 1П220-2Т
    Тип опоры Промежуточные
    Цепность Двухцепные
    Марка проводов АС240/32
    Марка троса С70 (ТК-11)
    № чертежа монтажной схемы 3.407.2-145.1 09КМ, СЗО ЭСП
    Масса опоры по черт. КМ без цинка в кг 5570
    Масса опоры по черт. КМ с цинком в кг 5787
    Шифр опоры 1П220-2Т-11.5
    Тип опоры Промежуточные
    Цепность Двухцепные
    Марка проводов АС240/32
    Марка троса С70 (ТК-11)
    № чертежа монтажной схемы 3.407.2-145.1 09КМ, СЗО ЭСП
    Масса опоры по черт. КМ без цинка в кг 4013
    Масса опоры по черт. КМ с цинком в кг 4170
    Шифр опоры 1П220-2Т-4.9
    Тип опоры Промежуточные
    Цепность Двухцепные
    Марка проводов АС240/32
    Марка троса С70 (ТК-11)
    № чертежа монтажной схемы 3.407.2-145.1 09КМ, СЗО ЭСП
    Масса опоры по черт. КМ без цинка в кг 4854
    Масса опоры по черт. КМ с цинком в кг 5043
    Шифр опоры 2П220-1
    Тип опоры Промежуточные
    Цепность Одноцепные
    Марка проводов АС240/32,АС400/51
    Марка троса С70 (ТК-11)
    № чертежа монтажной схемы 3.407.2-145.1 01КМ, СЗО ЭСП
    Масса опоры по черт. КМ без цинка в кг 4396
    Масса опоры по черт. КМ с цинком в кг 4560
    Шифр опоры 2П220-1-11.5
    Тип опоры Промежуточные
    Цепность Одноцепные
    Марка проводов АС240/32,АС400/51
    Марка троса С70 (ТК-11)
    № чертежа монтажной схемы 3.407.2-145.1 01КМ, СЗО ЭСП
    Масса опоры по черт. КМ без цинка в кг 2959
    Масса опоры по черт. КМ с цинком в кг 3069
    Шифр опоры 2П220-1-6.8
    Тип опоры Промежуточные
    Цепность Одноцепные
    Марка проводов АС240/32,АС400/51
    Марка троса С70 (ТК-11)
    № чертежа монтажной схемы 3.407.2-145.1 01КМ, СЗО ЭСП
    Масса опоры по черт. КМ без цинка в кг 3561
    Масса опоры по черт. КМ с цинком в кг 3694
    Шифр опоры 2П220-1Т
    Тип опоры Промежуточные
    Цепность Одноцепные
    Марка проводов АС240/32,АС400/51
    Марка троса С70 (ТК-11)
    № чертежа монтажной схемы 3.407.2-145.1 01КМ, СЗО ЭСП
    Масса опоры по черт. КМ без цинка в кг 4595
    Масса опоры по черт. КМ с цинком в кг 4767
    Шифр опоры 2П220-1Т-11.5
    Тип опоры Промежуточные
    Цепность Одноцепные
    Марка проводов АС240/32,АС400/51
    Марка троса С70 (ТК-11)
    № чертежа монтажной схемы 3.407.2-145.1 01КМ, СЗО ЭСП
    Масса опоры по черт. КМ без цинка в кг 3162
    Масса опоры по черт. КМ с цинком в кг 3279
    Шифр опоры 2П220-1Т-6.8
    Тип опоры Промежуточные
    Цепность Одноцепные
    Марка проводов АС240/32,АС400/51
    Марка троса С70 (ТК-11)
    № чертежа монтажной схемы 3.407.2-145.1 01КМ, СЗО ЭСП
    Масса опоры по черт. КМ без цинка в кг 3761
    Масса опоры по черт. КМ с цинком в кг 3901
    Шифр опоры 2П220-2
    Тип опоры Промежуточные
    Цепность Двухцепные
    Марка проводов АС240/32,АС400/51
    Марка троса С70 (ТК-11)
    № чертежа монтажной схемы 3.407.2-145.1 13КМ, СЗО ЭСП
    Масса опоры по черт. КМ без цинка в кг 6728
    Масса опоры по черт. КМ с цинком в кг 6976
    Шифр опоры 2П220-2-11.5
    Тип опоры Промежуточные
    Цепность Двухцепные
    Марка проводов АС240/32,АС400/51
    Марка троса С70 (ТК-11)
    № чертежа монтажной схемы 3.407.2-145.1 13КМ, СЗО ЭСП
    Масса опоры по черт. КМ без цинка в кг 4689
    Масса опоры по черт. КМ с цинком в кг 4861
    Шифр опоры 2П220-2-5.0
    Тип опоры Промежуточные
    Цепность Двухцепные
    Марка проводов АС240/32,АС400/51
    Марка троса С70 (ТК-11)
    № чертежа монтажной схемы 3.407.2-145.1 13КМ, СЗО ЭСП
    Масса опоры по черт. КМ без цинка в кг 5757
    Масса опоры по черт. КМ с цинком в кг 5969
    Шифр опоры 2П220-2Т
    Тип опоры Промежуточные
    Цепность Двухцепные
    Марка проводов АС240/32,АС400/51
    Марка троса С70 (ТК-11)
    № чертежа монтажной схемы 3.407.2-145.1 13КМ, СЗО ЭСП
    Масса опоры по черт. КМ без цинка в кг 6876
    Масса опоры по черт. КМ с цинком в кг 7130
    Шифр опоры 2П220-2Т-11.5
    Тип опоры Промежуточные
    Цепность Двухцепные
    Марка проводов АС240/32,АС400/51
    Марка троса С70 (ТК-11)
    № чертежа монтажной схемы 3.407.2-145.1 13КМ, СЗО ЭСП
    Масса опоры по черт. КМ без цинка в кг 4836
    Масса опоры по черт. КМ с цинком в кг 5012
    Шифр опоры 2П220-2Т-5.0
    Тип опоры Промежуточные
    Цепность Двухцепные
    Марка проводов АС240/32,АС400/51
    Марка троса С70 (ТК-11)
    № чертежа монтажной схемы 3.407.2-145.1 13КМ, СЗО ЭСП
    Масса опоры по черт. КМ без цинка в кг 5905
    Масса опоры по черт. КМ с цинком в кг 6122
    Шифр опоры 2П220-3
    Тип опоры Промежуточные
    Цепность Одноцепные
    Марка проводов АС240/32
    Марка троса С70 (ТК-11)
    № чертежа монтажной схемы 3.407.2-145.1 05КМ, СЗО ЭСП
    Масса опоры по черт. КМ без цинка в кг 3909
    Масса опоры по черт. КМ с цинком в кг 4055
    Шифр опоры 2П220-3-11.5
    Тип опоры Промежуточные
    Цепность Одноцепные
    Марка проводов АС240/32
    Марка троса С70 (ТК-11)
    № чертежа монтажной схемы 3.407.2-145.1 05КМ, СЗО ЭСП
    Масса опоры по черт. КМ без цинка в кг 2618
    Масса опоры по черт. КМ с цинком в кг 2715
    Шифр опоры 2П220-3-5.8
    Тип опоры Промежуточные
    Цепность Одноцепные
    Марка проводов АС240/32
    Марка троса С70 (ТК-11)
    № чертежа монтажной схемы 3.407.2-145.1 05КМ, СЗО ЭСП
    Масса опоры по черт. КМ без цинка в кг 3199
    Масса опоры по черт. КМ с цинком в кг 3318
    Шифр опоры 2П220-3Т
    Тип опоры Промежуточные
    Цепность Одноцепные
    Марка проводов АС240/32
    Марка троса С70 (ТК-11)
    № чертежа монтажной схемы 3.407.2-145.1 05КМ, СЗО ЭСП
    Масса опоры по черт. КМ без цинка в кг 4107
    Масса опоры по черт. КМ с цинком в кг 4251
    Шифр опоры 2П220-3Т-11.5
    Тип опоры Промежуточные
    Цепность Одноцепные
    Марка проводов АС240/32
    Марка троса С70 (ТК-11)
    № чертежа монтажной схемы 3.407.2-145.1 05КМ, СЗО ЭСП
    Масса опоры по черт. КМ без цинка в кг 2820
    Масса опоры по черт. КМ с цинком в кг 2924
    Шифр опоры 2П220-3Т-5.8
    Тип опоры Промежуточные
    Цепность Одноцепные
    Марка проводов АС240/32
    Марка троса С70 (ТК-11)
    № чертежа монтажной схемы 3.407.2-145.1 05КМ, СЗО ЭСП
    Масса опоры по черт. КМ без цинка в кг 3397
    Масса опоры по черт. КМ с цинком в кг 3523
    Шифр опоры 2П220-7
    Тип опоры Промежуточные
    Цепность Одноцепные
    Марка проводов АС240/32,АС400/51
    Марка троса С70 (ТК-11)
    № чертежа монтажной схемы 3.407.2-165.1 18КМ, СЗО ЭСП
    Масса опоры по черт. КМ без цинка в кг 3877
    Масса опоры по черт. КМ с цинком в кг 4001
    Шифр опоры 2П220-7+4.5
    Тип опоры Промежуточные
    Цепность Одноцепные
    Марка проводов АС240/32,АС400/51
    Марка троса С70 (ТК-11)
    № чертежа монтажной схемы 3.407.2-165.1 18КМ, СЗО ЭСП
    Масса опоры по черт. КМ без цинка в кг 4252
    Масса опоры по черт. КМ с цинком в кг 4388
    Шифр опоры 2П220-7-10.5
    Тип опоры Промежуточные
    Цепность Одноцепные
    Марка проводов АС240/32,АС400/51
    Марка троса С70 (ТК-11)
    № чертежа монтажной схемы 3.407.2-165.1 18КМ, СЗО ЭСП
    Масса опоры по черт. КМ без цинка в кг 3117
    Масса опоры по черт. КМ с цинком в кг 3217
    Шифр опоры 2П220-7-6.0
    Тип опоры Промежуточные
    Цепность Одноцепные
    Марка проводов АС240/32,АС400/51
    Марка троса С70 (ТК-11)
    № чертежа монтажной схемы 3.407.2-165.1 18КМ, СЗО ЭСП
    Масса опоры по черт. КМ без цинка в кг 3486
    Масса опоры по черт. КМ с цинком в кг 3597
    Шифр опоры 2П220-7Т
    Тип опоры Промежуточные
    Цепность Одноцепные
    Марка проводов АС240/32,АС400/51
    Марка троса С70 (ТК-11)
    № чертежа монтажной схемы 3.407.2-165.1 18КМ, СЗО ЭСП
    Масса опоры по черт. КМ без цинка в кг 4025
    Масса опоры по черт. КМ с цинком в кг 4155
    Шифр опоры 2П220-7Т+4.5
    Тип опоры Промежуточные
    Цепность Одноцепные
    Марка проводов АС240/32,АС400/51
    Марка троса С70 (ТК-11)
    № чертежа монтажной схемы 3.407.2-165.1 18КМ, СЗО ЭСП
    Масса опоры по черт. КМ без цинка в кг 4400
    Масса опоры по черт. КМ с цинком в кг 4541
    Шифр опоры 2П220-7Т-10.5
    Тип опоры Промежуточные
    Цепность Одноцепные
    Марка проводов АС240/32,АС400/51
    Марка троса С70 (ТК-11)
    № чертежа монтажной схемы 3.407.2-165.1 18КМ, СЗО ЭСП
    Масса опоры по черт. КМ без цинка в кг 3265
    Масса опоры по черт. КМ с цинком в кг 3370
    Шифр опоры 2П220-7Т-6.0
    Тип опоры Промежуточные
    Цепность Одноцепные
    Марка проводов АС240/32,АС400/51
    Марка троса С70 (ТК-11)
    № чертежа монтажной схемы 3.407.2-165.1 18КМ, СЗО ЭСП
    Масса опоры по черт. КМ без цинка в кг 3633
    Масса опоры по черт. КМ с цинком в кг 3750
    Шифр опоры 3П220-2
    Тип опоры Промежуточные
    Цепность Двухцепные
    Марка проводов АС240/32,АС400/51
    Марка троса С70 (ТК-11)
    № чертежа монтажной схемы 3.407.2-156.2 01КМ, СЗО ЭСП
    Масса опоры по черт. КМ без цинка в кг 7120
    Масса опоры по черт. КМ с цинком в кг 7384
    Шифр опоры 3П220-2-11.5
    Тип опоры Промежуточные
    Цепность Двухцепные
    Марка проводов АС240/32,АС400/51
    Марка троса С70 (ТК-11)
    № чертежа монтажной схемы 3.407.2-156.2 01КМ, СЗО ЭСП
    Масса опоры по черт. КМ без цинка в кг 5047
    Масса опоры по черт. КМ с цинком в кг 5233
    Шифр опоры 3П220-2-5.0
    Тип опоры Промежуточные
    Цепность Двухцепные
    Марка проводов АС240/32,АС400/51
    Марка троса С70 (ТК-11)
    № чертежа монтажной схемы 3.407.2-156.2 01КМ, СЗО ЭСП
    Масса опоры по черт. КМ без цинка в кг 6141
    Масса опоры по черт. КМ с цинком в кг 6368
    Шифр опоры 3П220-2Т
    Тип опоры Промежуточные
    Цепность Двухцепные
    Марка проводов АС240/32,АС400/51
    Марка троса С70 (ТК-11)
    № чертежа монтажной схемы 3.407.2-156.2 01КМ, СЗО ЭСП
    Масса опоры по черт. КМ без цинка в кг 7231
    Масса опоры по черт. КМ с цинком в кг 7500
    Шифр опоры 3П220-2Т-11.5
    Тип опоры Промежуточные
    Цепность Двухцепные
    Марка проводов АС240/32,АС400/51
    Марка троса С70 (ТК-11)
    № чертежа монтажной схемы 3.407.2-156.2 01КМ, СЗО ЭСП
    Масса опоры по черт. КМ без цинка в кг 5158
    Масса опоры по черт. КМ с цинком в кг 5350
    Шифр опоры 3П220-2Т-5.0
    Тип опоры Промежуточные
    Цепность Двухцепные
    Марка проводов АС240/32,АС400/51
    Марка троса С70 (ТК-11)
    № чертежа монтажной схемы 3.407.2-156.2 01КМ, СЗО ЭСП
    Масса опоры по черт. КМ без цинка в кг 6250
    Масса опоры по черт. КМ с цинком в кг 6481